St Peter’s Hospital Staff Accommodation, Piled Rafts Design
Beta Scope
Beta Design Consultants comprised the following:
- Design of a piled raft system that can be supported on shallow piles. This system removes the need for a deep piling rig. This system shall replace the traditional system of ground beams on deep piles. This replaces the traditional system of ground beams on deep piles.
- Detailed construction drawings for 7 rafts including pile setting out and rebar drawings.
Background
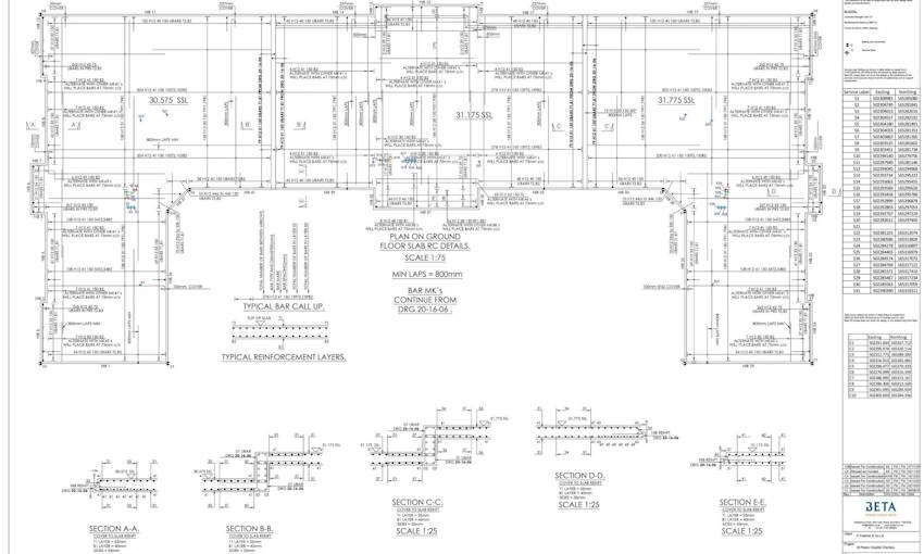
Beta Design Consultants was commissioned to provide the geotechnical analysis and foundations design for the seven blocks of NHS Accommodation at St Peters Hospital in Chertsey. The scheme aims to provide 75 accommodation units in the first stage.
The 7 blocks foundation system would need to respond to the site conditions as laid out in the soil investigation, observe the project tight schedule and save on construction cost to stay within the budget.
BDC re-design of the substructure system lead to 3 weeks savings in the client programme from 14 weeks to 11 weeks.

Beta Solution
1. Design of Piled Raft System
The initial scheme that was proposed by others was to support each block on a system of ground beams that are supported by deep piles. BDC proposed an alternative system of piled rafts that offers the following advantages:
- Rafts are supported on shallow piles. These can be installed by a “mid-range” piling rig that takes piles to less than 10m deep. The rig would not need a piling mat so this would save a huge cost of the piling platform (usually an excavation of 500mm, compaction of soil that needs to be imported and compacted in layers, cost of nearly 30-40k per block, programme of at least 3 weeks per block).
- The piling programme has more certainty as larger number of small piles are required which are easier to install than deeper piles.
- The rafts require minimum excavation and shuttering compared to ground beams. The reduction in excavation and shuttering lead to huge savings in cost and programme. It is estimated that this has lead to savings of 20-25k per block and programme savings of 8-10 working days.
- The rafts rebar can be laid in a very simple manner. Raft reinforcement is easier to lay than ground beams caged rebars. This is also believed to have contributed to savings in budget and programme.

2. Detailed construction
BDC worked with the piling contractor and the groundworks team to prepare buildable designs for the piled rafts and for the rafts reinforcement.

Client: United Living
Location: Chertsey
Related projects
Planning Permission for 21 Boston Road Townhouse Conversion
Read More
Brentford Waterfront Block B and C Temporary Works Design
Read More
Brentford Waterfront Block K Temporary Works Design
Read More
Leisure Swimming Pool House Design
Read More
Engine Yard Punching Shear Slab Strengthening
Read More
Planning Application for Three Story Residential Building
Read More
Helmsley Place-Steel Connections Design and Detailing
Read More
Kennedy Institute Extension - Flat Slab Punching Shear Strengthening
Read More
Planning Permission for a Basement in a Conservation Area
Read More
Structural Repairs of a Listed Building
Read More
One West Point – Design of Support System for Cladding
Read More
Orchard House – RC Column Strengthening using CFRP
Read More
Structural Design of 3 Storey Building
Read More
Queens Rise- Steel Structure Connection Design and Detailing
Read More
Grove Park Gardens 4 Storey Residential Development
Read More
BP Deep Water Sump Assessment and Concrete Repair Design
Read More
Fulham Palace Road Temporary Works Design
Read More
Stage 50 Bovingdon Airfield Studios
Read More
Concept Design of Cité Administrative Koloma
Read More
Coast Drive Visitor Centre, Watersport and Beach Huts
Read More
Concept Design of Sedhiou Bridge and Roads Network
Read More
Stage 50 Wycombe Film Studios Village
Read More
CFRP and HPC Concrete Strengthening for Brindleyplace
Read More
CPS House Jacketing to Strengthen RC Beams
Read More
BP Heater Foundation Concrete Repair
Read More
BP GF Gas Plant Asset Integrity and Refurbishment
Read More
BP GF Gas Plant – Slug Catcher Foundation Walls RC Repair
Read More
Harwell Campus-Concrete Strengthening
Read More
Planning Permission for New Warehouse, Ealing
Read More
Polybags Ltd Warehouse Extension in Lyon Way
Read More
LABSA Sulphonation Plant Erbil
Read More
Energy from Waste Plant - Process Water Drainage Design
Read More
Spire Academy (Horizon Academy) Car Park Refurbishment
Read More
RAAC Investigation and Structural Strengthening
Read More
Nant Melyn Bridge Inspection for Assessment
Read More