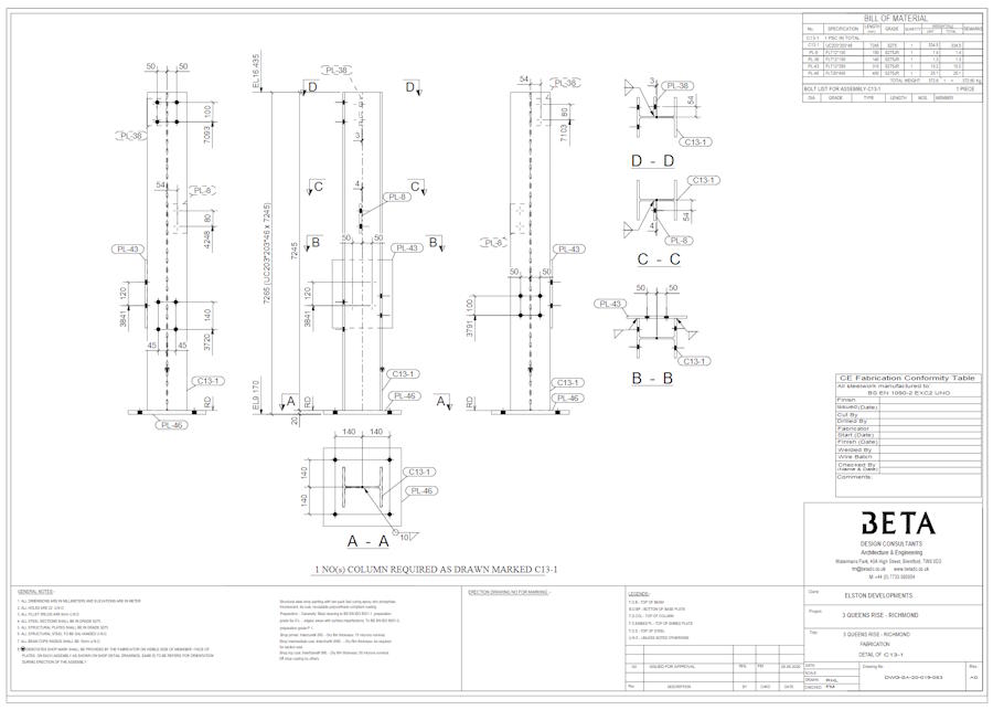
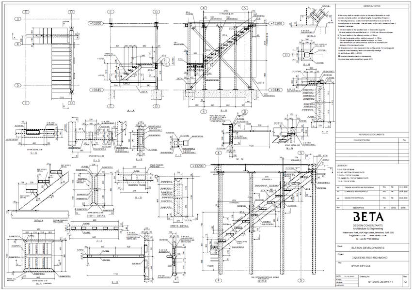
Queens Rise- Steel Structure Connection Design and Detailing
Beta Scope
- Steel connections Design.
- The design of all steel to concrete connections.
- The preparation of the fabrication drawings.
- Steel stairs connections design and the preparation of the fabrication drawings.
Background
The project is to a luxury villa accommodation in the London Borough of Richmond.
The developer appointed Chapmans Steel Fabrication to deliver the structural steel and Beta Design Consultants were appointed to provide connections design and the detailed fabrication drawings for the two storey steel structure.

Beta Solution
Idea Statica was used to design all steel to steel connections and achieve maximum standardisation possible to reduce cost of fabrication and time of installation.
Hilti Profis was used to design all steel to concrete connections.
Tekla Structures was used to produce the fabrication drawings.

Client: Chapmans Steel Fabrication
Architect: Snell David Architects
Related projects
Planning Permission for 21 Boston Road Townhouse Conversion
Read More
Brentford Waterfront Block B and C Temporary Works Design
Read More
Brentford Waterfront Block K Temporary Works Design
Read More
Leisure Swimming Pool House Design
Read More
Engine Yard Punching Shear Slab Strengthening
Read More
Planning Application for Three Story Residential Building
Read More
Helmsley Place-Steel Connections Design and Detailing
Read More
Planning Permission for a Basement in a Conservation Area
Read More
Structural Repairs of a Listed Building
Read More
One West Point – Design of Support System for Cladding
Read More
Orchard House – RC Column Strengthening using CFRP
Read More
Structural Design of 3 Storey Building
Read More
St Peter’s Hospital Staff Accommodation, Piled Rafts Design
Read More
Grove Park Gardens 4 Storey Residential Development
Read More
Action Court Warehouse Extension
Read More
BP GF Gas Plant Asset Integrity and Refurbishment
Read More
Value Engineering for Warehouse and Office Building
Read More
Three Story Warehouse Steel Structure Design
Read More
London Hippodrome Roof Extension – Structural Design and Detailing
Read More
Polybags Ltd Warehouse Extension in Lyon Way
Read More
Stage 50 Wycombe Film Studios Village
Read More
Stage 50 Bovingdon Airfield Studios
Read More
Concept Design of Cité Administrative Koloma
Read More
Coast Drive Visitor Centre, Watersport and Beach Huts
Read More
Northside Garages Structural Investigation
Read More
Peckham Arch Condition Survey & Life Extension Consulting Services
Read More
Pembroke Road Footbridge - Structural Investigation & Strengthening
Read More
RAAC Investigation and Structural Strengthening
Read More
Concept Design of Sedhiou Bridge and Roads Network
Read More
Spire Academy (Horizon Academy) Car Park Refurbishment
Read More
United Downs Deep Geothermal Power Plant
Read More
Wycombe Air Park- Data Centre
Read More
Planning Permission for New Warehouse, Ealing
Read More
Kennedy Institute Extension - Flat Slab Punching Shear Strengthening
Read More
Bus Depot Electrification Harrow
Read More